Appartement T3 de 63,8 m² avec terrasse à Septème, livraison 2025

  • 209 000 €
38780 Septème, France
Appartement T3 de 63,8 m² avec terrasse à Septème, livraison 2025 Appartement T3 de 63,8 m² avec terrasse à Septème, livraison 2025
  • Appartement
  • Type de Propriété
  • 2
  • Chambres
  • 63.8
  • 2025
  • Année de Construction
A vendre

Appartement T3 de 63,8 m² avec terrasse à Septème, livraison 2025

38780 Septème, France
  • 209 000 €

Description

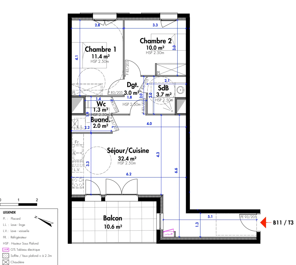
Découvrez cet appartement de type 3 situé en plein centre du village, offrant une superficie habitable de 63,8 m² avec une terrasse de 10,6 m² exposée à l’ouest. Composé d’un séjour avec cuisine de 32,4 m², deux chambres avec placards (11,4 m² et 10 m²), une salle de bain de 3,7 m², un toilette de 1,3 m², et un dégagement de 3 m². Situé au premier étage sur deux, il bénéficie de prestations modernes telles que chauffage par pompe à chaleur, menuiseries en PVC et aluminium avec volets battants en bois lasuré, vidéophone, badge Vigik, fibre optique, isolation phonique et thermique. Il comprend également une place de stationnement privative. Proche des écoles et commerces, cet appartement livré en 2025 est prêt à être habité. Les honoraires sont à la charge du vendeur. Pour plus d’informations, contacter Marie-Christine JANDARD, agent immatriculé au RSAC de Vienne.

En résumé

- Cet appartement de type 3 offre une surface habitable de 63,8 m² avec une terrasse de 10,6 m² exposée à l'Ouest, parfait pour profiter du soleil en fin de journée.
- Il dispose de deux chambres de 11,4 m² et 10 m² avec placards intégrés, ainsi qu'un séjour/cuisine spacieux de 32,4 m², idéal pour recevoir ou vivre confortablement.
- La construction est récente, elle date de 2025, ce qui garantit des prestations modernes, notamment le chauffage par pompe à chaleur et une isolation performante.
- Le bien inclut une place de stationnement privative, ce qui est un grand avantage en centre-village et facilite votre quotidien.
- Situé à proximité immédiate des écoles et des commerces, cet appartement est parfaitement adapté pour une vie pratique et confortable.

Détails

Mis à jour le novembre 10, 2025 à 2:50 pm
  • ID de la Propriété: PetitsPrixImmo-54796
  • Prix: 209 000 €
  • Surface du Bien: 63.8 m²
  • Chambres: 2
  • Pièces: 3
  • Année de Construction: 2025
  • Type de Propriété: Appartement
  • Statut de la Propriété: A vendre

Caractéristiques

Classe énergétique

Diagnostic de Performance Énergétique (DPE)

  • Classe énergétique: E
  • Indice de Performance Énergétique Global: 306 kWh/m²/an
  • Note actuelle du DPE: 306
  • A+
  • A
  • B
  • C
  • D
  • 306 | Classe d'énergie E
    E
  • F
  • G
  • H

Informations Loi ALUR

Copropriété

  • Soumis au statut de la copropriété: Oui
  • Procédure d'alerte/redressement: Aucune

Honoraires

  • Prix total TTC (honoraires inclus): 209 000 €
  • Ville Septeme
  • Code Postal 38780
  • Quartier/Secteur Cote vermeille tout
  • Pays France

Calculateur de prêt immobilier

Mensuel
  • Apport Personnel
  • Montant du Prêt
  • Mensualité du Prêt
%
%

(*) Cette simulation est communiquée à titre informatif et ne constitue en aucun cas un engagement contractuel. Les résultats obtenus à travers ce calculateur hypothécaire sont basés sur des données par défaut et des estimations. Ils ne tiennent pas compte des conditions spécifiques de chaque transaction immobilière.
Nous vous recommandons de consulter un professionnel du secteur financier pour obtenir des informations plus précises et adaptées à votre situation personnelle avant de prendre une décision financière importante.

Annonces similaires

Informations de Contact

Voir les annonces
MLVIMMOBILIER_1
  • MLVIMMOBILIER

Renseignez-vous sur cette propriété

Les informations sur les risques auxquels ce bien est exposé sont disponibles sur le site Géorisques, http://www.georisques.gouv.fr

Compare listings

Comparer
MLVIMMOBILIER
  • MLVIMMOBILIER