Projet de construction d’une maison neuve de 85 m² à Oeyreluy près de Dax

  • 216 000 €
40180 Oeyreluy, France
Projet de construction d'une maison neuve de 85 m² à Oeyreluy près de Dax
  • Maison
  • Type de Propriété
  • 3
  • Chambres
  • 85
A vendre

Projet de construction d’une maison neuve de 85 m² à Oeyreluy près de Dax

40180 Oeyreluy, France
  • 216 000 €

Description

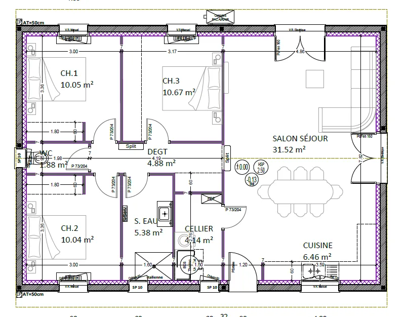
À seulement 10 minutes de Dax, Maisons d’en France, constructeur de maisons, présente son modèle Mimosa de 85 m². Cette maison dispose d’une spacieuse pièce de vie de 38 m² avec une cuisine ouverte et un cellier attenant, idéale pour un espace convivial et fonctionnel. L’espace nuit comprend trois chambres équipées de placards, une salle d’eau moderne et un WC séparé. La luminosité naturelle de la pièce à vivre optimise l’aménagement intérieur, offrant un cadre de vie agréable et réfléchi. Le projet inclut le terrain viabilisé, les frais de notaire, la maison (hors peinture), l’assurance dommages ouvrages, la garantie de livraison, ainsi que le terrassement et les raccordements. La construction se réalisera sur un terrain de 500 m², avec plusieurs autres lots disponibles. Ce projet est proposé sous réserve de disponibilité auprès de notre partenaire foncier. Contactez rapidement Marlène DUBERTRAND à l’agence de SAINT PAUL LES DAX pour vous accompagner dans la réalisation de votre projet selon les normes RE 2020.

En résumé

- La maison fait 85 m² avec une pièce de vie lumineuse de 38 m², idéale pour créer un espace convivial et fonctionnel.
- Elle comprend 3 chambres équipées de placards, un WC séparé et une salle d’eau moderne, parfaitement adaptée à une vie familiale.
- Le projet inclut un terrain viabilisé de 500 m², avec plusieurs autres lots disponibles pour choisir celui qui vous convient.
- Le prix total, tout compris (terrain, frais de notaire, assurance, raccordements), s’élève à 216 000 € hors peinture.
- Le projet respecte la norme RE 2020, garantissant une construction performante et éco-responsable.

Détails

Mis à jour le décembre 6, 2025 à 12:32 am
  • ID de la Propriété: PetitsPrixImmo-3502570
  • Prix: 216 000 €
  • Surface du Bien: 85 m²
  • Superficie du Terrain: 500 m²
  • Chambres: 3
  • Pièces: 4
  • Type de Propriété: Maison
  • Statut de la Propriété: A vendre
  • Ville Oeyreluy
  • Code Postal 40180
  • Pays Fr

Calculateur de prêt immobilier

Mensuel
  • Apport Personnel
  • Montant du Prêt
  • Mensualité du Prêt
%
%

(*) Cette simulation est communiquée à titre informatif et ne constitue en aucun cas un engagement contractuel. Les résultats obtenus à travers ce calculateur hypothécaire sont basés sur des données par défaut et des estimations. Ils ne tiennent pas compte des conditions spécifiques de chaque transaction immobilière.
Nous vous recommandons de consulter un professionnel du secteur financier pour obtenir des informations plus précises et adaptées à votre situation personnelle avant de prendre une décision financière importante.

Annonces similaires

Informations de Contact

Voir les annonces
MAISONS D’EN FRANCE SUD OUEST DAX
  • MAISONS D’EN FRANCE SUD OUEST DAX

Renseignez-vous sur cette propriété

Les informations sur les risques auxquels ce bien est exposé sont disponibles sur le site Géorisques, http://www.georisques.gouv.fr

Compare listings

Comparer
MAISONS D’EN FRANCE SUD OUEST DAX
  • MAISONS D’EN FRANCE SUD OUEST DAX