Opportunité d’achat d’appartements neufs à Saint Priest près de Lyon

  • 295 900 €
69800 Saint-Priest, France
Opportunité d'achat d'appartements neufs à Saint Priest près de Lyon Opportunité d'achat d'appartements neufs à Saint Priest près de Lyon Opportunité d'achat d'appartements neufs à Saint Priest près de Lyon Opportunité d'achat d'appartements neufs à Saint Priest près de Lyon Opportunité d'achat d'appartements neufs à Saint Priest près de Lyon
  • Appartement
  • Type de Propriété
  • 2
  • Chambres
  • 61.01
  • 2025
  • Année de Construction
A vendre

Opportunité d’achat d’appartements neufs à Saint Priest près de Lyon

69800 Saint-Priest, France
  • 295 900 €

Description

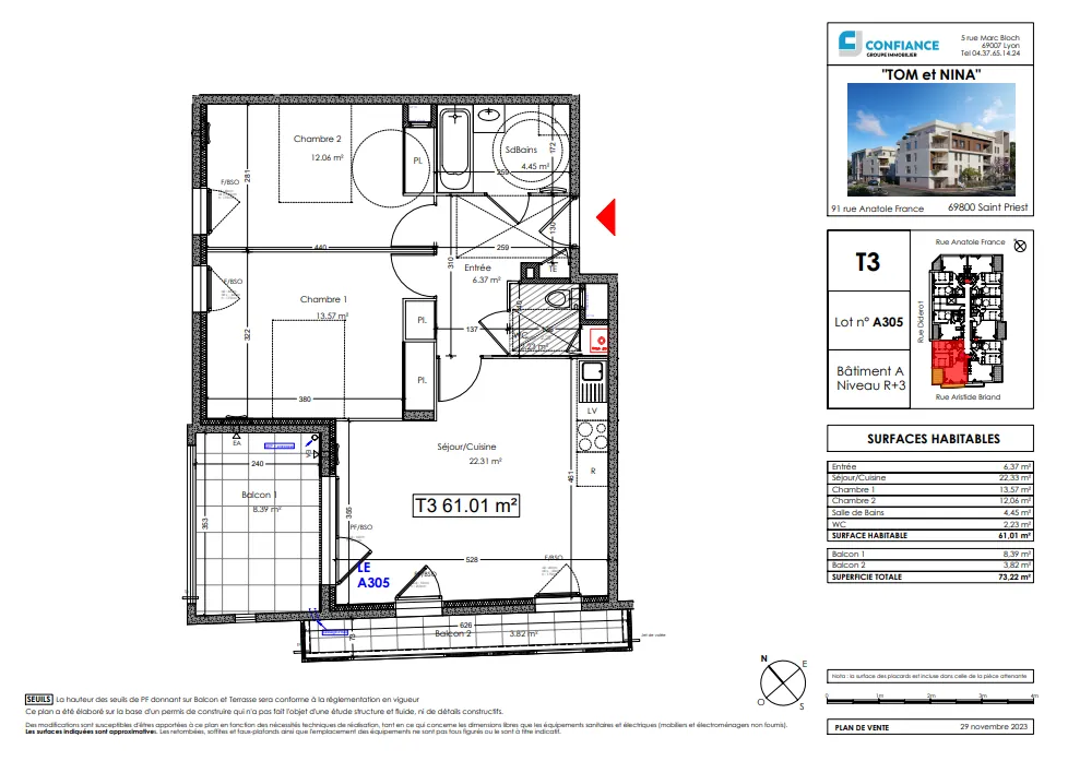
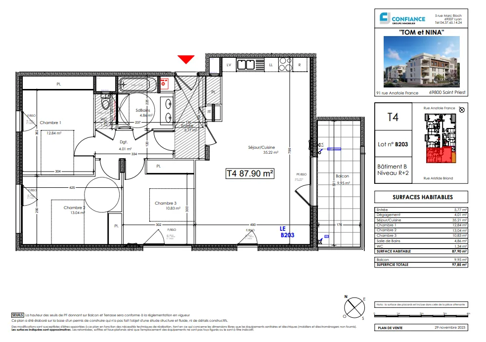
Neyret immobilier présente une opportunité d’achat à Saint Priest, à seulement 20 minutes de Lyon, dans une résidence neuve livrée au troisième trimestre 2025. Cette résidence de standing, baptisée ‘Tom & Nina’, située à l’angle des rues Diderot, Aristide Briand et Anatole France, s’intègre harmonieusement dans le paysage urbain moderne. Au calme, elle a été construite selon les normes RT 2012, avec un chauffage individuel au gaz et une toiture végétalisée. Sur un total de 40 logements, il ne reste que deux T3 d’environ 56.83 et 61.01 m² ainsi que trois T4 de 87.62, 87.90 et 91.33 m² disponibles à la vente. Certains logements offrent des options de finitions supplémentaires sur demande. Les prix varient de 295 900 € à 351 000 €. Les futurs propriétaires peuvent également bénéficier, selon leur revenu, du Prêt à Taux Zéro (PTZ), facilitant l’accès à la propriété avec des conditions bancaires avantageuses. Les T3 disposent d’une à deux places de parking, tandis que les T4 disposent d’une à deux places en sous-sol sécurisé, avec certains logements équipés d’un cellier. Pour plus d’informations, contactez Stéphane JIMENEZ, qui se fera un plaisir de vous conseiller et de vous faire découvrir ce beau projet immobilier. Profitez d’un achat à prix abordable et devenez propriétaire dans un environnement calme et résidentiel. Les risques liés à la propriété sont détaillés sur le site Georisques.

En résumé

- La résidence 'Tom & Nina' est livrée au 3ème trimestre 2025, situant votre futur investissement dans un projet récent et moderne, dans un environnement calme à Saint Priest.
- Il ne reste que deux T3 de 56.83 et 61.01 m² ainsi que trois T4 de 87.62, 87.90 et 91.33 m², donc une opportunité limitée qui vous garantit de faire partie des privilégiés.
- Les prix varient de 295 900 € pour ces logements, avec la possibilité de bénéficier du Prêt à Taux Zéro, ce qui peut alléger considérablement votre financement.
- Chaque T3 dispose d'une à deux places de parking, et les T4 d'une à deux places en sous-sol sécurisé, avec certains logements proposant un cellier, pour votre confort et celui de votre famille.
- La construction respecte la norme RT 2012, avec un chauffage individuel au gaz et une toiture végétalisée, assurant une excellente isolation et des coûts de chauffage maîtrisés à long terme.

Détails

Mis à jour le novembre 5, 2025 à 3:48 pm
  • ID de la Propriété: PetitsPrixImmo-3237371
  • Prix: 295 900 €
  • Orientation: SUD-OUEST
  • Surface du Bien: 61.01 m²
  • Chambres: 2
  • Pièces: 3
  • Année de Construction: 2025
  • Type de Propriété: Appartement
  • Statut de la Propriété: A vendre

Caractéristiques

  • Ville St priest
  • Code Postal 69800
  • Pays France

Calculateur de prêt immobilier

Mensuel
  • Apport Personnel
  • Montant du Prêt
  • Mensualité du Prêt
%
%

(*) Cette simulation est communiquée à titre informatif et ne constitue en aucun cas un engagement contractuel. Les résultats obtenus à travers ce calculateur hypothécaire sont basés sur des données par défaut et des estimations. Ils ne tiennent pas compte des conditions spécifiques de chaque transaction immobilière.
Nous vous recommandons de consulter un professionnel du secteur financier pour obtenir des informations plus précises et adaptées à votre situation personnelle avant de prendre une décision financière importante.

Annonces similaires

Informations de Contact

Voir les annonces
NEYRET-IMMOBILIER_5
  • NEYRET-IMMOBILIER

Renseignez-vous sur cette propriété

Les informations sur les risques auxquels ce bien est exposé sont disponibles sur le site Géorisques, http://www.georisques.gouv.fr

Compare listings

Comparer
NEYRET-IMMOBILIER
  • NEYRET-IMMOBILIER