Appartement T3 rénové de 74 m² avec 2 parkings à Peynier

  • 260 000 €
13790 Châteauneuf-le-Rouge, France
Appartement T3 rénové de 74 m² avec 2 parkings à Peynier Appartement T3 rénové de 74 m² avec 2 parkings à Peynier Appartement T3 rénové de 74 m² avec 2 parkings à Peynier Appartement T3 rénové de 74 m² avec 2 parkings à Peynier Appartement T3 rénové de 74 m² avec 2 parkings à Peynier Appartement T3 rénové de 74 m² avec 2 parkings à Peynier Appartement T3 rénové de 74 m² avec 2 parkings à Peynier Appartement T3 rénové de 74 m² avec 2 parkings à Peynier
  • Appartement
  • Type de Propriété
  • 2
  • Chambres
  • 1
  • Salle de Bain
  • 2
  • Garages
  • 74.1
A vendre

Appartement T3 rénové de 74 m² avec 2 parkings à Peynier

13790 Châteauneuf-le-Rouge, France
  • 260 000 €

Description

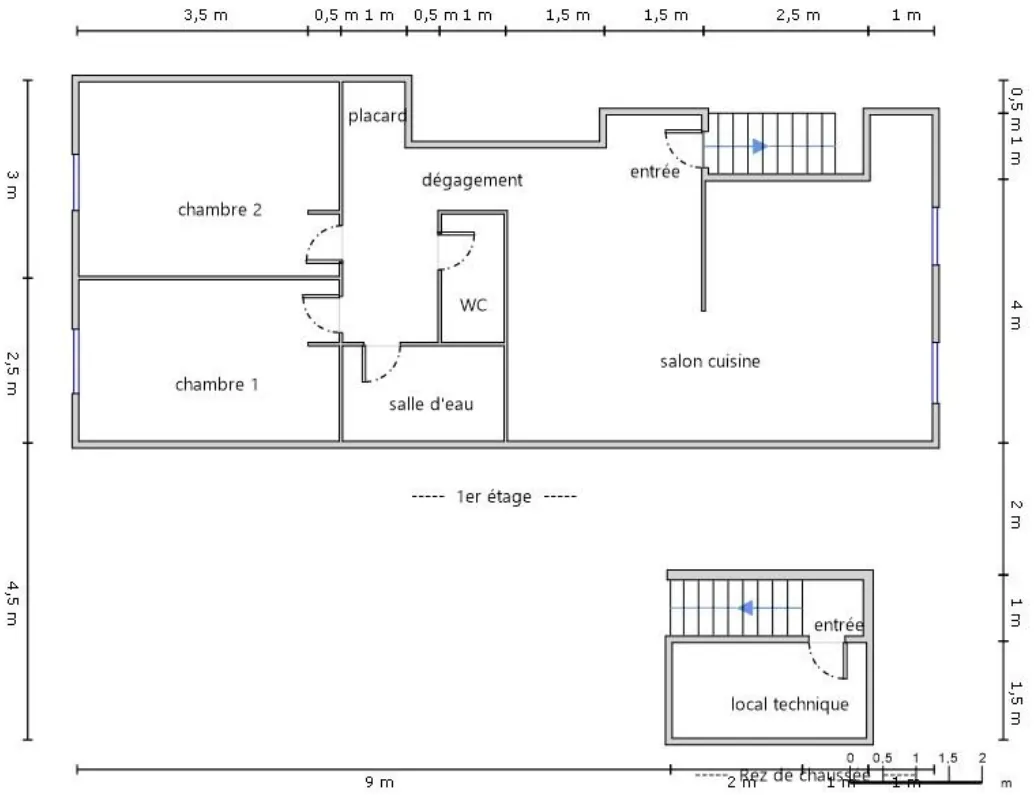
Découvrez cet appartement traversant entièrement rénové en 2024, situé au 1er étage d’une petite copropriété bien entretenue de 9 lots, avec entrée indépendante. Ce bien de 74 m², comprenant 67,84 m² loi Carrez, offre un séjour lumineux de 33,83 m² avec une cuisine ouverte, deux chambres de 10,85 m² équipées de placards intégrés, une salle d’eau de 3,93 m², ainsi qu’un WC séparé de 1,57 m². Vous profiterez d’un espace de rangement pratique et d’une buanderie. La possibilité d’aménager les combles permet d’augmenter le potentiel d’espace supplémentaire. L’exposition Est-Ouest assure un éclairage naturel généreux dès le matin et le soir. L’appartement dispose de fenêtres en double vitrage et a été récemment rénové en 2024. Deux places de stationnement privatives extérieures sont incluses dans cette offre. La copropriété, conviviale, comporte seulement 9 lots et implique des charges d’environ 120 €/mois couvrant l’entretien des espaces verts, des parties communes et l’eau froide. Situé sur l’avenue de la Libération à Peynier, cet appartement bénéficie d’un accès facile aux commerces, écoles et axes routiers. Sa rénovation récente, combinée à son potentiel d’agrandissement grâce aux combles aménageables, en fait un bien idéal pour un premier achat ou un investissement patrimonial.

En résumé

- Cet appartement de 74 m², dont 67,84 m² loi Carrez, a été entièrement rénové en 2024, vous offrant un espace moderne et prêt à vivre.
- Il dispose d’un séjour lumineux de 33,83 m² avec une cuisine ouverte, idéal pour recevoir et profiter de la lumière naturelle grâce à son exposition Est-Ouest.
- Avec 2 chambres de 10,85 m² équipées de placards, une salle d’eau de 3,93 m² et des WC séparés, l’aménagement est optimisé pour votre confort.
- Vous bénéficiez de deux places de stationnement privatives extérieures incluses, un vrai atout dans cette zone résidentielle.
- La possibilité d’aménager les combles offre un potentiel d’agrandissement, vous permettant d’adapter le bien à vos besoins futurs, dans une petite copropriété conviviale de seulement 9 lots, avec des charges d’environ 120 €/mois.

Détails

Mis à jour le novembre 14, 2025 à 7:52 am
  • ID de la Propriété: PetitsPrixImmo-3419177
  • Prix: 260 000 €
  • Orientation: EST-OUEST
  • Surface du Bien: 74.1 m²
  • Chambres: 2
  • Pièces: 3
  • Salle de Bain: 1
  • Garages: 2
  • Type de Propriété: Appartement
  • Statut de la Propriété: A vendre

Classe énergétique

Diagnostic de Performance Énergétique (DPE)

  • Classe énergétique: C
  • Indice de Performance Énergétique Global: 142 kWh/m²/an
  • Classe climat (GES): A
  • Émissions de gaz à effet de serre: 4 kg CO₂/m²/an
  • Date de réalisation du DPE: 19/09/2025
  • Montant estimé des dépenses annuelles d'énergie: 790 € - 1 130 € (année de référence : 2023)
  • Note actuelle du DPE: 142
  • A+
  • A
  • B
  • 142 | Classe d'énergie C
    C
  • D
  • E
  • F
  • G
  • H

Informations Loi ALUR

Copropriété

  • Soumis au statut de la copropriété: Oui
  • Procédure d'alerte/redressement: Aucune

Honoraires

  • Prix hors honoraires: 247 000 €
  • Honoraires TTC: 13 000 €
  • Prix total TTC (honoraires inclus): 260 000 €
  • Charge des honoraires: 2
  • Ville Peynier
  • Code Postal 13790
  • Pays France

Calculateur de prêt immobilier

Mensuel
  • Apport Personnel
  • Montant du Prêt
  • Mensualité du Prêt
%
%

(*) Cette simulation est communiquée à titre informatif et ne constitue en aucun cas un engagement contractuel. Les résultats obtenus à travers ce calculateur hypothécaire sont basés sur des données par défaut et des estimations. Ils ne tiennent pas compte des conditions spécifiques de chaque transaction immobilière.
Nous vous recommandons de consulter un professionnel du secteur financier pour obtenir des informations plus précises et adaptées à votre situation personnelle avant de prendre une décision financière importante.

Annonces similaires

Informations de Contact

Voir les annonces
EXPERTIMO_355
  • EXPERTIMO

Renseignez-vous sur cette propriété

Les informations sur les risques auxquels ce bien est exposé sont disponibles sur le site Géorisques, http://www.georisques.gouv.fr

Compare listings

Comparer
EXPERTIMO
  • EXPERTIMO