Maison neuve moderne avec 3 chambres, garage et terrain à Pissos

  • 255 000 €
40410 Pissos, France
Maison neuve moderne avec 3 chambres, garage et terrain à Pissos Maison neuve moderne avec 3 chambres, garage et terrain à Pissos Maison neuve moderne avec 3 chambres, garage et terrain à Pissos
  • Maison
  • Type de Propriété
  • 3
  • Chambres
  • 92
A vendre

Maison neuve moderne avec 3 chambres, garage et terrain à Pissos

40410 Pissos, France
  • 255 000 €

Description

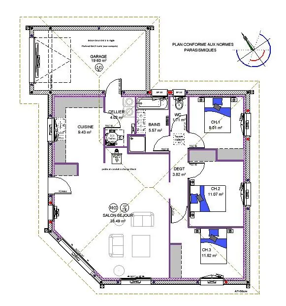
Située sur la commune de Pissos, cette charmante maison neuve de 92 m², répondant à la norme RE 2020, se trouve idéalement entre Bordeaux et Mont-de-Marsan, à seulement 40 minutes de Biscarosse et de l’océan. Accessible à pied, elle est implantée sur un terrain de 555 m² dans un petit lotissement de 8 parcelles, avec services, commerces et école à proximité. La maison se compose d’un grand espace de vie lumineux de 46 m², avec de larges baies vitrées dont une en pan coupé, et une cuisine semi-ouverte donnant sur un cellier et un garage de près de 20 m². La partie nuit comprend trois chambres avec placards, une salle de bains équipée d’une double vasque, d’une baignoire et d’une grande douche, ainsi que des WC séparés. Adaptée pour une résidence principale, un investissement locatif ou une maison de vacances, cette demeure offre un confort moderne avec un système de chauffage pièce par pièce, garantissant économies d’énergie et respect des normes environnementales. La maison est prête à être décorée selon vos goûts : il ne reste que la peinture et la cuisine à installer. La personnalisation du plan, de la disposition et du système de chauffage est possible. Le prix, comprenant la maison, le terrain, les frais de notaire, le terrassement et les raccordements, est à partir de 255 000 euros, en fonction de la disponibilité du terrain. Pour plus d’informations, contactez Katherine, votre conseillère Maisons d’en France Sud-Ouest.

En résumé

- La maison propose une surface de 92 m² avec un espace de vie lumineux de 46 m² grâce à de larges baies vitrées, offrant un cadre de vie agréable et convivial.
- Vous bénéficierez de 3 chambres avec placards intégrés, parfait pour une famille ou un investissement locatif, avec une salle de bains équipée comprenant une double vasque, une baignoire et une grande douche.
- Le terrain de 555 m² est entièrement viabilisé, situé dans un lotissement calme de 8 parcelles, avec tous les services, commerces et écoles accessibles à pied.
- La construction satisfait la norme RE 2020, utilisant un système de chauffage pièce par pièce, vous assurant confort et économies d’énergie, tout en étant entièrement personnalisable selon vos envies.
- Le prix total, comprenant maison, terrain, frais de notaire, terrassement et raccordements, démarre à partir de 255 000 euros, fabriquant une opportunité attractive dans cette localisation stratégique.

Détails

Mis à jour le octobre 1, 2025 à 1:13 pm
  • ID de la Propriété: PetitsPrixImmo-3083590
  • Prix: 255 000 €
  • Surface du Bien: 92 m²
  • Superficie du Terrain: 555 m²
  • Chambres: 3
  • Pièces: 4
  • Type de Propriété: Maison
  • Statut de la Propriété: A vendre
  • Ville Pissos
  • Code Postal 40410

Calculateur de prêt immobilier

Mensuel
  • Apport Personnel
  • Montant du Prêt
  • Mensualité du Prêt
%
%

(*) Cette simulation est communiquée à titre informatif et ne constitue en aucun cas un engagement contractuel. Les résultats obtenus à travers ce calculateur hypothécaire sont basés sur des données par défaut et des estimations. Ils ne tiennent pas compte des conditions spécifiques de chaque transaction immobilière.
Nous vous recommandons de consulter un professionnel du secteur financier pour obtenir des informations plus précises et adaptées à votre situation personnelle avant de prendre une décision financière importante.

Informations de Contact

Voir les annonces
MAISONS D’EN FRANCE SUD OUEST DAX
  • MAISONS D’EN FRANCE SUD OUEST DAX

Renseignez-vous sur cette propriété

Les informations sur les risques auxquels ce bien est exposé sont disponibles sur le site Géorisques, http://www.georisques.gouv.fr

Compare listings

Comparer
MAISONS D’EN FRANCE SUD OUEST DAX
  • MAISONS D’EN FRANCE SUD OUEST DAX