Projet de construction d’une maison neuve de 85 m² à Hinx

  • 182 000 €
40180 Hinx, France
Projet de construction d'une maison neuve de 85 m² à Hinx Projet de construction d'une maison neuve de 85 m² à Hinx
  • Maison
  • Type de Propriété
  • 3
  • Chambres
  • 85
A vendre

Projet de construction d’une maison neuve de 85 m² à Hinx

40180 Hinx, France
  • 182 000 €

Description

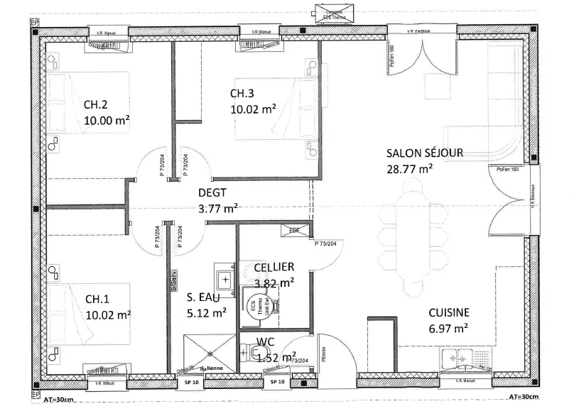
Projet en cours de construction par Maisons d’en France, constructeur de maisons individuelles. La maison modèle Mimosa de 85 m² offre un espace de vie lumineux de 38 m² avec une cuisine ouverte et un cellier attenant. L’espace nuit comprend trois chambres avec placards intégrés, une salle d’eau et un WC séparé. L’agencement optimise la luminosité et le confort du logement. Le prix inclut le terrain viabilisé de 579 m², les frais de notaire, ainsi que la maison (sans peinture), l’assurance dommages-ouvrage, la garantie de livraison, le terrassement et les raccordements. Ce projet est proposé sur un terrain disponible, avec plusieurs autres lots possibles, en accord avec notre partenaire foncier. La maison sera conforme aux normes RE 2020. Pour plus d’informations, contactez Marlène DUBERTRAND à l’agence de SAINT PAUL LES DAX. Non mandaté pour la vente du terrain, sous réserve de disponibilité.

En résumé

- Avec un prix de 182 000 €, vous acquérez une maison de 85 m² conçue selon les normes RE 2020, garantissant efficacité énergétique et confort moderne.
- La maison dispose de trois chambres avec placards, d’une pièce de vie lumineuse de 38 m² avec cuisine ouverte, idéale pour un espace familial convivial.
- Le terrain de 579 m² est viabilisé, y compris les raccordements et le terrassement, ce qui vous simplifie la démarche d’installation.
- Il s’agit d’un projet sur-mesure, avec plusieurs lots disponibles, vous permettant d’adapter votre achat à vos besoins et à votre budget.
- La livraison inclut la maison prête, hors peinture, avec l’assurance dommages-ouvrage, la garantie de livraison et les frais de notaire, pour une complète sérénité.

Détails

Mis à jour le octobre 24, 2025 à 12:07 am
  • ID de la Propriété: PetitsPrixImmo-3126869
  • Prix: 182 000 €
  • Surface du Bien: 85 m²
  • Superficie du Terrain: 579 m²
  • Chambres: 3
  • Pièces: 4
  • Type de Propriété: Maison
  • Statut de la Propriété: A vendre
  • Ville Hinx
  • Code Postal 40180
  • Pays Fr

Calculateur de prêt immobilier

Mensuel
  • Apport Personnel
  • Montant du Prêt
  • Mensualité du Prêt
%
%

(*) Cette simulation est communiquée à titre informatif et ne constitue en aucun cas un engagement contractuel. Les résultats obtenus à travers ce calculateur hypothécaire sont basés sur des données par défaut et des estimations. Ils ne tiennent pas compte des conditions spécifiques de chaque transaction immobilière.
Nous vous recommandons de consulter un professionnel du secteur financier pour obtenir des informations plus précises et adaptées à votre situation personnelle avant de prendre une décision financière importante.

Informations de Contact

Voir les annonces
MAISONS D’EN FRANCE SUD OUEST DAX
  • MAISONS D’EN FRANCE SUD OUEST DAX

Renseignez-vous sur cette propriété

Les informations sur les risques auxquels ce bien est exposé sont disponibles sur le site Géorisques, http://www.georisques.gouv.fr

Compare listings

Comparer
MAISONS D’EN FRANCE SUD OUEST DAX
  • MAISONS D’EN FRANCE SUD OUEST DAX