Terrain constructible à Benquet avec projet de maison moderne de 80m²

  • 182 900 €
40280 Benquet, France
Terrain constructible à Benquet avec projet de maison moderne de 80m² Terrain constructible à Benquet avec projet de maison moderne de 80m²
  • Maison
  • Type de Propriété
  • 2
  • Chambres
  • 80
A vendre

Terrain constructible à Benquet avec projet de maison moderne de 80m²

40280 Benquet, France
  • 182 900 €

Description

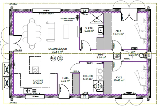
Découvrez ce terrain entièrement viabilisé (électricité, eau, tout-à-l’égout) de 330m², situé en plein cœur de Benquet, à seulement 10 minutes de Mont de Marsan. Idéal pour bâtir votre maison moderne d’environ 80m², comprenant 2 chambres, une cuisine ouverte sur un salon lumineux et un jardin. Le projet, modulable selon vos préférences, est proposé à partir de 182 900 euros, comprenant la construction d’une maison, la garantie d’achèvement, de livraison, le dépannage dommages ouvrage, tout à prix et délai convenus. Les frais de notaire ne sont pas inclus. Contactez Stéphanie, votre conseillère Maisons d’en France, pour plus d’informations. Réf : SC-BENQUET-2100TM.

En résumé

- Vous pouvez acquérir un terrain entièrement viabilisé de 330m², situé en plein cœur de Benquet, à proximité immédiate des commerces, écoles et arrêts de bus, idéal pour une famille ou un projet personnalisable.
- La construction d'une maison moderne d’environ 80m² avec 2 chambres est proposée, avec un espace lumineux ouvert sur un jardin, entièrement modifiable selon vos envies.
- Le prix total à partir de 182 900 euros inclut le terrain, la maison, la garantie d'achèvement, la livraison à prix et délais convenus, ainsi que la garantie dommages ouvrage.
- Le terrain est à seulement 10 minutes de Mont de Marsan, ce qui facilite vos déplacements quotidiens tout en profitant d’un environnement calme et agréable.
- La superficie du terrain (330m²) couplée à un prix global attractif, représente une opportunité rare d’accéder à la construction d’une maison moderne dans cette région.

Détails

Mis à jour le novembre 15, 2025 à 1:26 am
  • ID de la Propriété: PetitsPrixImmo-3434657
  • Prix: 182 900 €
  • Surface du Bien: 80 m²
  • Superficie du Terrain: 330 m²
  • Chambres: 2
  • Pièces: 3
  • Type de Propriété: Maison
  • Statut de la Propriété: A vendre
  • Ville Benquet
  • Code Postal 40280
  • Pays Fr

Calculateur de prêt immobilier

Mensuel
  • Apport Personnel
  • Montant du Prêt
  • Mensualité du Prêt
%
%

(*) Cette simulation est communiquée à titre informatif et ne constitue en aucun cas un engagement contractuel. Les résultats obtenus à travers ce calculateur hypothécaire sont basés sur des données par défaut et des estimations. Ils ne tiennent pas compte des conditions spécifiques de chaque transaction immobilière.
Nous vous recommandons de consulter un professionnel du secteur financier pour obtenir des informations plus précises et adaptées à votre situation personnelle avant de prendre une décision financière importante.

Informations de Contact

Voir les annonces
MAISONS D’EN FRANCE SUD OUEST DAX
  • MAISONS D’EN FRANCE SUD OUEST DAX

Renseignez-vous sur cette propriété

Les informations sur les risques auxquels ce bien est exposé sont disponibles sur le site Géorisques, http://www.georisques.gouv.fr

Compare listings

Comparer
MAISONS D’EN FRANCE SUD OUEST DAX
  • MAISONS D’EN FRANCE SUD OUEST DAX