Maison neuve de 150 m² à Gibourne avec dépendance et permis de construire validé

  • 98 100 €
Gibourne, France
Maison neuve de 150 m² à Gibourne avec dépendance et permis de construire validé
  • Maison
  • Type de Propriété
  • 4
  • Chambres
  • 1
  • Salle de Bain
  • 150
  • 2023
  • Année de Construction
A vendre

Maison neuve de 150 m² à Gibourne avec dépendance et permis de construire validé

Gibourne, France
  • 98 100 €

Description

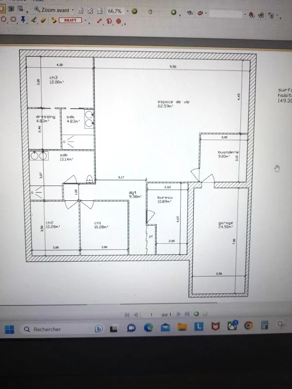
Yves BINABOUT de l’agence TOWER IMMOBILIER vous présente une maison de plain-pied de 150 m² située à Gibourne (17160). Ce bien comprend 5 pièces, dont 4 chambres, une pièce à vivre spacieuse de 63 m², 2 salles d’eau et un bureau. La maison est bâtie sur un terrain de 725 m² avec une dépendance. La construction, débutée en 2023, est à finir, incluant la toiture, l’isolation, l’électricité, la plomberie et la menuiserie, le gros œuvre étant achevé. Le système d’assainissement individuel est neuf, conforme à l’accord de la SPANC, avec prévision d’épendage. La propriété est viabilisée en eau et électricité. Il est possible de continuer la construction tout en y habitant grâce à un mobil-home autorisé sur le terrain, jusqu’à l’achèvement des travaux, un permis de construire étant déjà accordé. Pour plus d’informations sur les risques liés à ce bien, consultez le site Géorisques. La vente est sous la responsabilité éditoriale de Yves BINABOUT, RSAC 388 862 062 à Saintes.

En résumé

- Cette maison de 150 m² possède 5 pièces, dont 4 chambres, idéale pour une famille recherche un espace confortable et pratique.
- Elle est implantée sur un terrain de 725 m² avec une dépendance, offrant de multiples possibilités d’aménagement ou d’extension.
- La construction a débuté en 2023 et est à finir, avec le gros œuvre déjà réalisé, ce qui vous permet d’adapter encore la finition selon vos goûts.
- Vous pouvez continuer à habiter sur place en utilisant le mobil-home autorisé, tout en finalisant les travaux, grâce à un permis de construire déjà accordé.
- La propriété est connectée à l’eau et à l’électricité, avec un système d’assainissement individuel neuf conforme à l’accord de la SPANC.

Détails

Mis à jour le novembre 14, 2025 à 3:52 am
  • ID de la Propriété: PetitsPrixImmo-3415762
  • Prix: 98 100 €
  • Surface du Bien: 150 m²
  • Superficie du Terrain: 725 m²
  • Chambres: 4
  • Pièces: 5
  • Salle de Bain: 1
  • Année de Construction: 2023
  • Type de Propriété: Maison
  • Statut de la Propriété: A vendre
  • Ville Gibourne
  • Code Postal 17160
  • Pays France

Calculateur de prêt immobilier

Mensuel
  • Apport Personnel
  • Montant du Prêt
  • Mensualité du Prêt
%
%

(*) Cette simulation est communiquée à titre informatif et ne constitue en aucun cas un engagement contractuel. Les résultats obtenus à travers ce calculateur hypothécaire sont basés sur des données par défaut et des estimations. Ils ne tiennent pas compte des conditions spécifiques de chaque transaction immobilière.
Nous vous recommandons de consulter un professionnel du secteur financier pour obtenir des informations plus précises et adaptées à votre situation personnelle avant de prendre une décision financière importante.

Informations de Contact

Voir les annonces
FREEIMMO_293
  • FREEIMMO

Renseignez-vous sur cette propriété

Les informations sur les risques auxquels ce bien est exposé sont disponibles sur le site Géorisques, http://www.georisques.gouv.fr

Compare listings

Comparer
FREEIMMO
  • FREEIMMO