Maison neuve modèle LISBONE à Cours-de-Pile – 3 chambres, garage et terrain de 2690 m²

  • 242 000 €
24520 Cours-de-Pile, France
  • Maison
  • Type de Propriété
  • 3
  • Chambres
  • 94
A vendre

Maison neuve modèle LISBONE à Cours-de-Pile – 3 chambres, garage et terrain de 2690 m²

24520 Cours-de-Pile, France
  • 242 000 €

Description

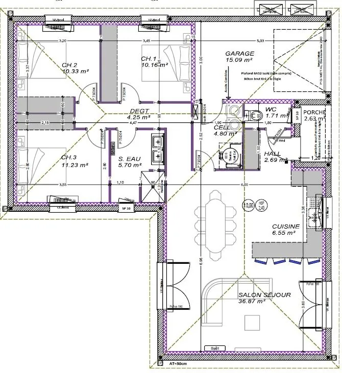
Les MAISONS AURA proposent le modèle LISBONE à COURS DE PILE, construit sur un terrain de 2690 m². Ce modèle en L, très en vogue, offre de grands espaces et une séparation claire entre la zone jour et la zone nuit, ce qui le rend idéal pour les familles. La maison Lisbonne, avec sa visite virtuelle, permet d’apprécier cette architecture unique. Elle comprend un plan optimal avec 3 chambres et un garage. Le prix global inclut les frais de notaire, la viabilisation, la cuisine équipée, la salle de bain aménagée ainsi que les peintures intérieures.

En résumé

- Vous bénéficiez d'une maison en L, très tendance actuellement, conçue sur un terrain de 2690 m², offrant un espace de vie optimisé en plein cœur de Cours-de-Pile (24520).
- Le modèle LISBONE comprend 3 chambres et un garage, parfait pour une famille souhaitant un espace confortable et fonctionnel.
- Le prix global pour cette maison inclut non seulement la construction, mais aussi les frais de notaire, la viabilisation, la cuisine équipée, la salle de bain, et les peintures intérieures, tout cela à 242 000 €.
- La configuration de cette maison met l'accent sur de grands espaces, avec une séparation claire entre la zone jour et la zone nuit, pour un confort optimal.
- La maison bénéficie d'une classification énergétique en classe "A", garantissant une bonne performance énergétique et des économies sur votre consommation.

Détails

Mis à jour le septembre 30, 2025 à 4:27 am
  • ID de la Propriété: PetitsPrixImmo-3077848
  • Prix: 242 000 €
  • Surface du Bien: 94 m²
  • Superficie du Terrain: 2670 m²
  • Chambres: 3
  • Pièces: 5
  • Type de Propriété: Maison
  • Statut de la Propriété: A vendre

Classe énergétique

Diagnostic de Performance Énergétique (DPE)

  • Classe énergétique: A
  • Indice de Performance Énergétique Global: kWh/m²/an
  • Date de réalisation du DPE: 19/07/2025
  • A+
  • | Classe d'énergie A
    A
  • B
  • C
  • D
  • E
  • F
  • G
  • H

Informations Loi ALUR

Copropriété

  • Soumis au statut de la copropriété: Non
  • Procédure d'alerte/redressement: Aucune

Honoraires

  • Prix total TTC (honoraires inclus): 242 000 €
  • Ville Cours-de-pile
  • Code Postal 24520

Calculateur de prêt immobilier

Mensuel
  • Apport Personnel
  • Montant du Prêt
  • Mensualité du Prêt
%
%

(*) Cette simulation est communiquée à titre informatif et ne constitue en aucun cas un engagement contractuel. Les résultats obtenus à travers ce calculateur hypothécaire sont basés sur des données par défaut et des estimations. Ils ne tiennent pas compte des conditions spécifiques de chaque transaction immobilière.
Nous vous recommandons de consulter un professionnel du secteur financier pour obtenir des informations plus précises et adaptées à votre situation personnelle avant de prendre une décision financière importante.

Annonces similaires

Informations de Contact

Voir les annonces
LES MAISONS AURA DE BERGERAC
  • LES MAISONS AURA DE BERGERAC

Renseignez-vous sur cette propriété

Les informations sur les risques auxquels ce bien est exposé sont disponibles sur le site Géorisques, http://www.georisques.gouv.fr

Compare listings

Comparer
LES MAISONS AURA DE BERGERAC
  • LES MAISONS AURA DE BERGERAC