Maison neuve à Pontonx-sur-l’Adour avec terrasse et 3 chambres

  • 269 000 €
40465 Pontonx-sur-l'Adour, France
  • Maison
  • Type de Propriété
  • 3
  • Chambres
  • 1
  • Salle de Bain
  • 99
A vendre

Maison neuve à Pontonx-sur-l’Adour avec terrasse et 3 chambres

40465 Pontonx-sur-l'Adour, France
  • 269 000 €

Description

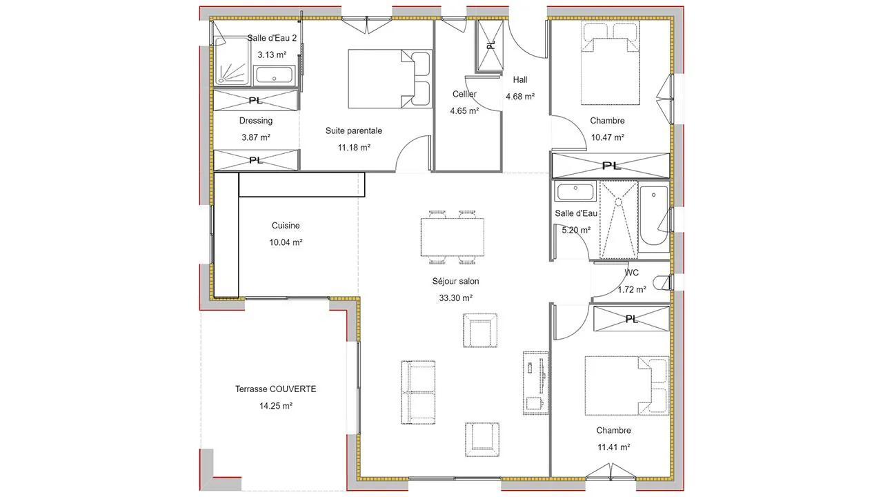
En ce début d’année, découvrez au cœur de Pontonx-sur-l’Adour un terrain en lotissement proche de tous commerces, accompagné d’une maison neuve d’environ 100 m² avec une terrasse couverte de plus de 14 m². Cette maison moderne, prête à vivre, est édifiée sur une parcelle de plus de 600 m², offrant un espace de vie agréable et peu contraignant à l’entretien. Pour ceux passionnés par la tonte, des terrains plus grands sont également disponibles. La maison conjugue fonctionnalité et confort avec trois chambres, dont une suite parentale équipée d’une salle d’eau et d’un dressing. La zone nuit est complétée par une salle de bain avec baignoire et double vasque. La pièce à vivre, comprenant salon, séjour et cuisine, fait plus de 43 m² et s’ouvre sur la terrasse exposée Sud-Ouest, apportant luminosité et confort. Un cellier avec placard situé à proximité de l’entrée offre un espace de rangement supplémentaire. Le système de chauffage gainable avec climatisation, type T ONE, permet une production d’eau chaude sanitaire économique. La maison possède du carrelage et du parquet dans les chambres, ainsi qu’un système de domotique pour la centralisation électrique des volets roulants. Conçue selon la norme RE 2020, cette construction peut être adaptée à vos envies, avec la possibilité d’ajouter un garage, sous réserve de modification du prix. Les finitions telles que peintures, parquet dans les chambres, cuisine, clôtures et portail restent à votre charge. Son prix de vente démarre à 269 000 €, comprenant terrain, maison, frais de notaire, raccordements et taxes d’aménagement. Le terrain est proposé par un partenaire foncier et sa disponibilité est limitée. Pour plus d’informations, n’hésitez pas à nous contacter. La référence de cette annonce est LM1-PONTONX.

En résumé

- La maison neuve de près de 100 m² est bâtie sur une parcelle de 601 m², offrant un espace de vie confortable tout en étant peu contraignant à entretenir.
- Elle dispose de 3 chambres, dont une suite parentale avec salle d’eau et dressing, ainsi qu’une salle de bain avec baignoire et double vasque.
- La pièce à vivre de plus de 43 m² s’ouvre sur une terrasse couverte de 14 m² exposée Sud-Ouest, idéale pour profiter du soleil et de la luminosité naturelle.
- Le système de chauffage gainable, type T ONE, avec climatisation, permet de produire l’eau chaude sanitaire à moindre coût, tout en intégrant la domotique pour la gestion des volets roulants.
- Son prix à partir de 269 000 € inclut le terrain, la maison, les raccordements, les frais de notaire, et les taxes d’aménagement, avec des possibilités d’adaptation des plans et d’ajout d’un garage.

Détails

Mis à jour le octobre 1, 2025 à 10:24 am
  • ID de la Propriété: PetitsPrixImmo-3082596
  • Prix: 269 000 €
  • Surface du Bien: 99 m²
  • Superficie du Terrain: 601 m²
  • Chambres: 3
  • Pièces: 4
  • Salle de Bain: 1
  • Type de Propriété: Maison
  • Statut de la Propriété: A vendre
  • Ville Pontonx-sur-l'adour
  • Code Postal 40465

Calculateur de prêt immobilier

Mensuel
  • Apport Personnel
  • Montant du Prêt
  • Mensualité du Prêt
%
%

(*) Cette simulation est communiquée à titre informatif et ne constitue en aucun cas un engagement contractuel. Les résultats obtenus à travers ce calculateur hypothécaire sont basés sur des données par défaut et des estimations. Ils ne tiennent pas compte des conditions spécifiques de chaque transaction immobilière.
Nous vous recommandons de consulter un professionnel du secteur financier pour obtenir des informations plus précises et adaptées à votre situation personnelle avant de prendre une décision financière importante.

Annonces similaires

Informations de Contact

Voir les annonces
MAISONS D’EN FRANCE SUD OUEST DAX
  • MAISONS D’EN FRANCE SUD OUEST DAX

Renseignez-vous sur cette propriété

Les informations sur les risques auxquels ce bien est exposé sont disponibles sur le site Géorisques, http://www.georisques.gouv.fr

Compare listings

Comparer
MAISONS D’EN FRANCE SUD OUEST DAX
  • MAISONS D’EN FRANCE SUD OUEST DAX