Appartement T3 spacieux avec terrasse et parking à Septème

  • 224 900 €
38780 Septème, France
Appartement T3 spacieux avec terrasse et parking à Septème Appartement T3 spacieux avec terrasse et parking à Septème
  • Appartement
  • Type de Propriété
  • 2
  • Chambres
  • 65.8
  • 2025
  • Année de Construction
A vendre

Appartement T3 spacieux avec terrasse et parking à Septème

38780 Septème, France
  • 224 900 €

Description

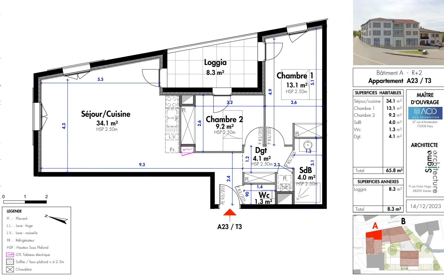
L’agence VERNAY IMMOBILIER vous propose un appartement de type T3 en plein cœur du village, d’une superficie totale de 65,8 m², avec une terrasse de 8,3 m² et deux places de stationnement privatives. Cet appartement comprend un séjour avec cuisine ouverte de 34,1 m², un dégagement de 4,1 m², une salle de bain de 4 m², des toilettes de 1,3 m², ainsi que deux chambres équipées de placards, respectivement de 13,1 m² et 9,2 m². Les prestations incluent un chauffage par pompe à chaleur, des menuiseries en PVC et aluminium, des volets battants en bois lasuré, un sèche-serviette, un carrelage dans les pièces principales (choix du client), du parquet dans les chambres (choix du client), une isolation phonique et thermique optimale, ainsi que la fibre optique. La vente est réalisée sans frais à la charge du vendeur. Pour plus d’informations, veuillez contacter Marie-Christine JANDARD. Les honoraires sont à la charge du vendeur.

En résumé

- Cet appartement de 65,8 m² offre un espace de vie lumineux avec un séjour/cuisine de 34,1 m², parfait pour accueillir famille ou amis.
- Vous bénéficiez d’une terrasse de 8,3 m² pour profiter des beaux jours ou recevoir en extérieur.
- Deux chambres équipées de placards, de 13,1 m² et 9,2 m², vous assurent un confort optimal pour votre vie quotidienne.
- La pompe à chaleur garantit un chauffage individuel efficace tout en étant économe en énergie.
- Avec deux places de stationnement privatives, vous n’aurez plus à vous soucier du parking.

Détails

Mis à jour le novembre 14, 2025 à 1:01 pm
  • ID de la Propriété: PetitsPrixImmo-236211
  • Prix: 224 900 €
  • Surface du Bien: 65.8 m²
  • Chambres: 2
  • Pièces: 3
  • Année de Construction: 2025
  • Type de Propriété: Appartement
  • Statut de la Propriété: A vendre

Caractéristiques

Classe énergétique

Diagnostic de Performance Énergétique (DPE)

  • Classe énergétique: D
  • Indice de Performance Énergétique Global: 214 kWh/m²/an
  • Classe climat (GES): E
  • Émissions de gaz à effet de serre: 46 kg CO₂/m²/an
  • Date de réalisation du DPE: 02/06/2025
  • Montant estimé des dépenses annuelles d'énergie: 1 340 € - 1 850 € (année de référence : 2021)
  • Note actuelle du DPE: 214
  • A+
  • A
  • B
  • C
  • 214 | Classe d'énergie D
    D
  • E
  • F
  • G
  • H

Informations Loi ALUR

Copropriété

  • Soumis au statut de la copropriété: Oui
  • Procédure d'alerte/redressement: Aucune

Honoraires

  • Prix hors honoraires: 75 000 €
  • Prix total TTC (honoraires inclus): 224 900 €
  • Ville Septeme
  • Code Postal 38780
  • Pays France

Calculateur de prêt immobilier

Mensuel
  • Apport Personnel
  • Montant du Prêt
  • Mensualité du Prêt
%
%

(*) Cette simulation est communiquée à titre informatif et ne constitue en aucun cas un engagement contractuel. Les résultats obtenus à travers ce calculateur hypothécaire sont basés sur des données par défaut et des estimations. Ils ne tiennent pas compte des conditions spécifiques de chaque transaction immobilière.
Nous vous recommandons de consulter un professionnel du secteur financier pour obtenir des informations plus précises et adaptées à votre situation personnelle avant de prendre une décision financière importante.

Annonces similaires

Informations de Contact

Voir les annonces
MLVIMMOBILIER_1
  • MLVIMMOBILIER

Renseignez-vous sur cette propriété

Les informations sur les risques auxquels ce bien est exposé sont disponibles sur le site Géorisques, http://www.georisques.gouv.fr

Compare listings

Comparer
MLVIMMOBILIER
  • MLVIMMOBILIER