Maison neuve 85 m² avec 3 chambres à Saint-Paul-Lès-Dax

  • 218 000 €
40990 Saint-Paul-lès-Dax, France
Maison neuve 85 m² avec 3 chambres à Saint-Paul-Lès-Dax Maison neuve 85 m² avec 3 chambres à Saint-Paul-Lès-Dax
  • Maison
  • Type de Propriété
  • 3
  • Chambres
  • 85
A vendre

Maison neuve 85 m² avec 3 chambres à Saint-Paul-Lès-Dax

40990 Saint-Paul-lès-Dax, France
  • 218 000 €

Description

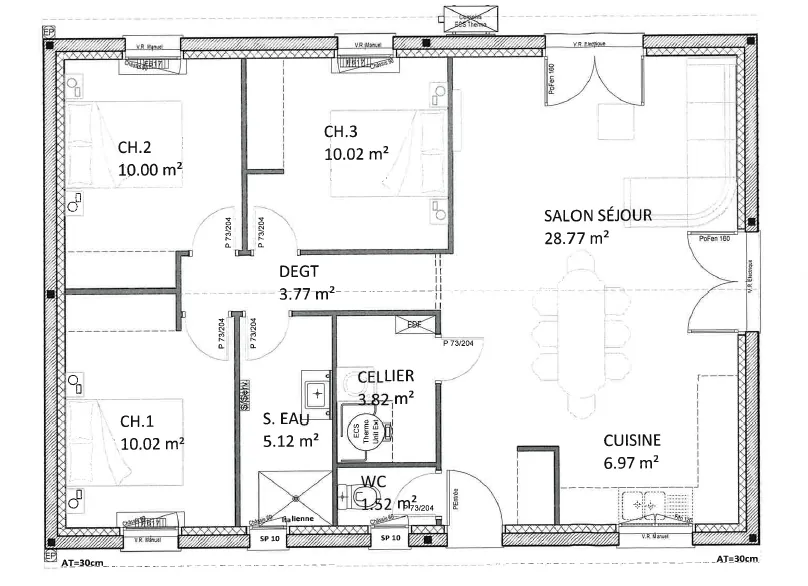
Projet de construction de maison sur mesure de 85 m² par Maisons d’en France. Ce modèle comprend une grande pièce de vie lumineuse de 38 m² avec une cuisine ouverte et un cellier attenant. L’espace nuit se compose de trois agréables chambres équipées de placards, ainsi que d’un WC séparé et d’une salle d’eau. La conception offre une optimisation optimale de l’aménagement et une luminosité naturelle appréciable. Le prix inclut le terrain viabilisé, les frais de notaire, la maison (hors peinture), l’assurance dommages ouvrages, la garantie de livraison, ainsi que le terrassement et les raccordements. Plusieurs autres lots sont disponibles. Non mandaté pour la vente du terrain. Sous réserve de disponibilité auprès de notre partenaire foncier. Normes RE 2020 pour une construction écologique et performante.

En résumé

- Vous profitez d’une maison neuve de 85 m² conçue sur mesure, avec une pièce de vie lumineuse de 38 m², parfaitement optimisée pour le confort et la convivialité.
- La maison dispose de 3 chambres avec placards intégrés, ainsi que d’un WC séparé et d’une salle d’eau, idéal pour accueillir famille ou invités.
- Le prix comprend non seulement le terrain viabilisé et les frais de notaire, mais aussi la garantie de livraison, le terrassement et les raccordements, sans supplément.
- La construction respecte les normes RE 2020, garantissant une performance énergétique optimal, essentielle pour réduire vos consommations.
- Plusieurs lots disponibles vous offrent la flexibilité pour choisir selon vos attentes, sous réserve de disponibilité auprès de notre partenaire foncier.

Détails

Mis à jour le novembre 28, 2025 à 1:04 am
  • ID de la Propriété: PetitsPrixImmo-3493379
  • Prix: 218 000 €
  • Surface du Bien: 85 m²
  • Superficie du Terrain: 482 m²
  • Chambres: 3
  • Pièces: 4
  • Type de Propriété: Maison
  • Statut de la Propriété: A vendre
  • Ville Saint-paul-lès-dax
  • Code Postal 40990
  • Pays Fr

Calculateur de prêt immobilier

Mensuel
  • Apport Personnel
  • Montant du Prêt
  • Mensualité du Prêt
%
%

(*) Cette simulation est communiquée à titre informatif et ne constitue en aucun cas un engagement contractuel. Les résultats obtenus à travers ce calculateur hypothécaire sont basés sur des données par défaut et des estimations. Ils ne tiennent pas compte des conditions spécifiques de chaque transaction immobilière.
Nous vous recommandons de consulter un professionnel du secteur financier pour obtenir des informations plus précises et adaptées à votre situation personnelle avant de prendre une décision financière importante.

Annonces similaires

Informations de Contact

Voir les annonces
MAISONS D’EN FRANCE SUD OUEST DAX
  • MAISONS D’EN FRANCE SUD OUEST DAX

Renseignez-vous sur cette propriété

Les informations sur les risques auxquels ce bien est exposé sont disponibles sur le site Géorisques, http://www.georisques.gouv.fr

Compare listings

Comparer
MAISONS D’EN FRANCE SUD OUEST DAX
  • MAISONS D’EN FRANCE SUD OUEST DAX