Maison à rénover à Troyes – Charmante maison avec potentiel dans l’Aube

  • 97 000 €
10000 Troyes, France
Maison à rénover à Troyes – Charmante maison avec potentiel dans l'Aube Maison à rénover à Troyes – Charmante maison avec potentiel dans l'Aube Maison à rénover à Troyes – Charmante maison avec potentiel dans l'Aube Maison à rénover à Troyes – Charmante maison avec potentiel dans l'Aube Maison à rénover à Troyes – Charmante maison avec potentiel dans l'Aube Maison à rénover à Troyes – Charmante maison avec potentiel dans l'Aube
  • Maison
  • Type de Propriété
  • 2
  • Chambres
  • 1
  • Salle de Bain
  • 42
A vendre

Maison à rénover à Troyes – Charmante maison avec potentiel dans l’Aube

10000 Troyes, France
  • 97 000 €

Description

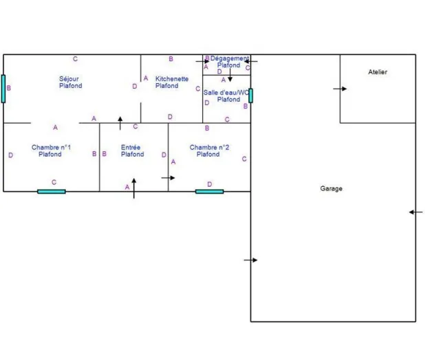
Découvrez cette charmante maison à rénover entièrement, offrant un charme d’époque avec ses arches à chaque ouverture et un sol authentique. Ce bien de plain-pied peut être transformé en un joli cocon avec la possibilité d’agrandissement. Actuellement composée de deux chambres, d’un salon, d’une cuisine, d’une salle d’eau, d’un atelier et d’un garage de plus de 50 m² aménageable selon vos projets. Idéale pour un premier achat ou un investissement locatif, cette propriété demande quelques travaux pour révéler tout son potentiel. Contactez-moi pour une visite et envisager votre futur chez vous ou votre projet d’investissement dans cette belle ville de Troyes, dans le département de l’Aube.

En résumé

- Vous avez une maison de plain-pied de 42 m² habitables, avec une surface Carrez de 41 m², composée de 2 chambres, un salon, une cuisine et une salle d'eau.
- La propriété comprend un atelier et un garage spacieux de plus de 50 m², facilement transformable selon vos projets.
- Située à Troyes, dans l'Aube, cette maison est à rénover mais offre un joli cachet avec ses arches d'époque et son sol authentique.
- Son prix attractif de 97 000 EUR (baisse par rapport au prix net vendeur) en fait une opportunité idéale pour un premier achat ou un investissement locatif.
- Elle possède une possibilité d'agrandissement, ce qui vous laisse envisager de moduler le bien selon vos besoins futurs.

Détails

Mis à jour le novembre 1, 2025 à 5:01 am
  • ID de la Propriété: PetitsPrixImmo-3149074
  • Prix: 97 000 €
  • Surface du Bien: 42 m²
  • Chambres: 2
  • Pièces: 3
  • Salle de Bain: 1
  • Type de Propriété: Maison
  • Statut de la Propriété: A vendre
  • Ville Troyes
  • Code Postal 10000
  • Pays France

Calculateur de prêt immobilier

Mensuel
  • Apport Personnel
  • Montant du Prêt
  • Mensualité du Prêt
%
%

(*) Cette simulation est communiquée à titre informatif et ne constitue en aucun cas un engagement contractuel. Les résultats obtenus à travers ce calculateur hypothécaire sont basés sur des données par défaut et des estimations. Ils ne tiennent pas compte des conditions spécifiques de chaque transaction immobilière.
Nous vous recommandons de consulter un professionnel du secteur financier pour obtenir des informations plus précises et adaptées à votre situation personnelle avant de prendre une décision financière importante.

Informations de Contact

Voir les annonces
REGM-BROKER_497
  • REGM-BROKER

Renseignez-vous sur cette propriété

Les informations sur les risques auxquels ce bien est exposé sont disponibles sur le site Géorisques, http://www.georisques.gouv.fr

Compare listings

Comparer
REGM-BROKER
  • REGM-BROKER