Appartement 2 pièces avec terrasse et box à Marseille 13014 – Investissement locatif

  • 100 000 €
13014 Marseille, France
Appartement 2 pièces avec terrasse et box à Marseille 13014 - Investissement locatif Appartement 2 pièces avec terrasse et box à Marseille 13014 - Investissement locatif Appartement 2 pièces avec terrasse et box à Marseille 13014 - Investissement locatif Appartement 2 pièces avec terrasse et box à Marseille 13014 - Investissement locatif Appartement 2 pièces avec terrasse et box à Marseille 13014 - Investissement locatif
  • Appartement
  • Type de Propriété
  • 1
  • Chambre
  • 1
  • Salle de Bain
  • 45.4
  • 2005
  • Année de Construction
A vendre

Appartement 2 pièces avec terrasse et box à Marseille 13014 – Investissement locatif

13014 Marseille, France
  • 100 000 €

Description

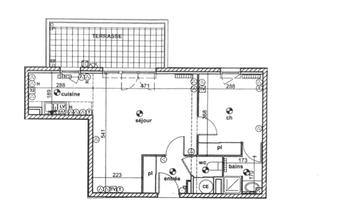
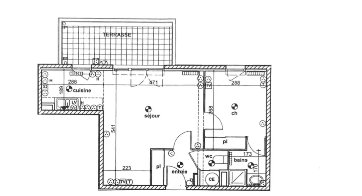
Opportunité pour investisseur ! Situé dans une résidence calme et bien entretenue, au 4ème étage avec ascenseur, cet appartement 2 pièces de 45,4 m² est vendu loué. Lumineux et agréable à vivre, il comprend un séjour/cuisine de 21,25 m² s’ouvrant à l’ouest sur une terrasse de 10 m², une chambre avec placard intégré, une salle d’eau, une entrée avec penderie et un WC séparé. Le locataire, sérieux, est en place depuis janvier 2022 avec un loyer mensuel de 739 € charges comprises (80 €). La résidence fermée et sécurisée dispose d’un espace vert entretenu. L’appartement est vendu avec un box fermé en sous-sol. La copropriété comporte 172 lots avec une quote-part de 123/10 000èmes, sans procédure en cours. Un excellent placement immobilier à Marseille, dans le code postal 13014, idéal pour un investisseur cherchant stabilité et confort.

En résumé

- Cet appartement de 45,4 m², situé au 4ème étage avec ascenseur, est vendu loué avec un loyer mensuel de 739 € charges comprises, offrant une rentabilité immédiate.
- La pièce de vie principale de 21,25 m² s'ouvre à l'ouest sur une terrasse de 10 m², idéale pour profiter du soleil en fin de journée.
- La propriété comprend une chambre avec un placard intégré, une salle d'eau, un WC séparé et l'appartement a été construit en 2005, garantissant une certaine modernité.
- La résidence, fermée et sécurisée, dispose d’un espace vert bien entretenu, ce qui ajoute à la qualité de vie tout en sécurisant votre investissement.
- En plus, un box fermé en sous-sol est inclus, facilitant le stationnement et valorisant davantage votre achat.

Détails

Mis à jour le octobre 28, 2025 à 1:16 am
  • ID de la Propriété: PetitsPrixImmo-2922750
  • Prix: 100 000 €
  • Surface du Bien: 45.4 m²
  • Chambre: 1
  • Pièces: 2
  • Salle de Bain: 1
  • Année de Construction: 2005
  • Type de Propriété: Appartement
  • Statut de la Propriété: A vendre

Caractéristiques

Classe énergétique

Diagnostic de Performance Énergétique (DPE)

  • Classe énergétique: C
  • Indice de Performance Énergétique Global: 144 kWh/m²/an
  • Classe climat (GES): A
  • Émissions de gaz à effet de serre: 4 kg CO₂/m²/an
  • Date de réalisation du DPE: 13/01/2025
  • Montant estimé des dépenses annuelles d'énergie: 610 € - 860 € (année de référence : 2023)
  • Note actuelle du DPE: 144
  • A+
  • A
  • B
  • 144 | Classe d'énergie C
    C
  • D
  • E
  • F
  • G
  • H

Informations Loi ALUR

Copropriété

  • Soumis au statut de la copropriété: Oui
  • Procédure d'alerte/redressement: Aucune

Honoraires

  • Prix hors honoraires: 95 000 €
  • Honoraires TTC: 5 000 €
  • Prix total TTC (honoraires inclus): 100 000 €
  • Charge des honoraires: 2
  • Ville Marseille
  • Code Postal 13014
  • Pays France

Calculateur de prêt immobilier

Mensuel
  • Apport Personnel
  • Montant du Prêt
  • Mensualité du Prêt
%
%

(*) Cette simulation est communiquée à titre informatif et ne constitue en aucun cas un engagement contractuel. Les résultats obtenus à travers ce calculateur hypothécaire sont basés sur des données par défaut et des estimations. Ils ne tiennent pas compte des conditions spécifiques de chaque transaction immobilière.
Nous vous recommandons de consulter un professionnel du secteur financier pour obtenir des informations plus précises et adaptées à votre situation personnelle avant de prendre une décision financière importante.

Annonces similaires

Informations de Contact

Voir les annonces
EXPERTIMO_753
  • EXPERTIMO

Renseignez-vous sur cette propriété

Les informations sur les risques auxquels ce bien est exposé sont disponibles sur le site Géorisques, http://www.georisques.gouv.fr

Compare listings

Comparer
EXPERTIMO
  • EXPERTIMO